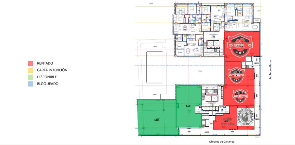
LOCALES EN RENTA EN FEDERALTA

Contratada el 03/02/2026

$33,601 Mensual

1 baños

Información Básica

Ciudad:
Zapopan
Colonia:
La Palmita
m² Terreno:
101.82

Descripción

Plaza federlata proyecto que combina vivienda y locales comerciales.

146 departamentos con áreas comunes como alberca, terraza,
roof garden y gimnasio.

24 locales comerciales.
49 cajones de estacionamiento para área comercial a nivel de calle
3 locales disponibles

planta baja:
1.- 101.82 m2 $33,600.60
2.- 80.62 m2 $22,170.50

1 nivel
145.17 m2 $25,549.92

costo mensual + iva Pago de cuota de mantenimiento por nivel por m
2
Tiempo minimo de renta 2 años

Ubicación

Zapopan, La Palmita

Compartir

Anuncios similares