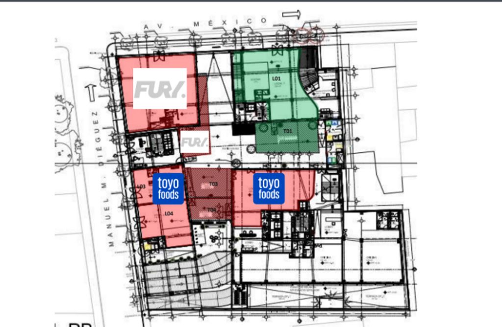
Local en renta en distrito republica L-01

Contratada el 03/02/2026

$104,125 Mensual

1 baños

Información Básica

Ciudad:
Guadalajara
Colonia:
Ladrón de Guevara
m² Terreno:
297.5

Descripción

Local en renta en distrito republica en proyecto mixto de departamentos , oficinas y 6 locales comerciales
227.00 m2 y 70.50 de terraza
Precio + iva + mantenimiento mensual


Ubicación

Guadalajara, Ladrón de Guevara

Compartir

Anuncios similares

Casa duplex en Rancho Nuevo

2 recámaras | 2 baños | 1 estacionamiento

Guadalajara

$3,500,000.00

Departamento en renta en Colinas de San…

2 recámaras | 2 baños | 1 estacionamiento

Guadalajara

$26,000.00

Terreno en venta en Mezquitan

Guadalajara

$1,600,000.00

Departamento en renta en Chapultepec Country

2 recámaras | 1 baño | 1 estacionamiento

Guadalajara

$13,000.00