BODEGA EN VENTA EN PARQUE INDUSTRIAL MAZATLÁN (01)

Contratada el 11/04/2026

$44,000,000

1 baños
13 estacionamientos

Información Básica

Ciudad:
Foráneos
Colonia:
parque industrial mazatlán
m² Construcción:
1844
m² Terreno:
1844

Descripción

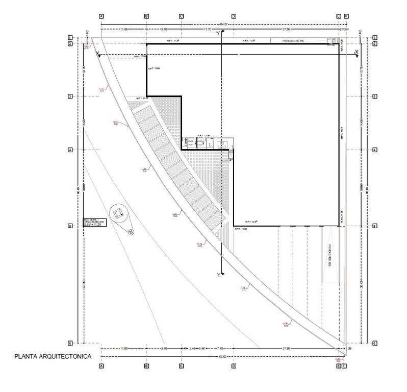
Bodega en venta en Parque Industrial Mazatlán.
$44,000,000
C: 1,844m2
4 puertas de andén y 1 rampa
Altura libre 8m
oficina 40m2 (baños, recepción y privados)
13 cajones de estacionamiento
5266 7131-02785266 7131-0278
Alviseya Inmobiliaria

Ubicación

Foráneos, parque industrial mazatlán

Compartir

Anuncios similares

Antes de que suba: casa en Zibatá a precio…

4 recámaras | 5 baños | 2 estacionamientos

Foráneos

$6,499,000.00

Estrena casa zona norte de Aguascalientes

3 recámaras | 3 baños | 2 estacionamientos

Foráneos

$3,243,280.00

CASA EN RENTA EN PRIVADA FRENTE AL PARQUE…

3 recámaras | 3 baños | 2 estacionamientos

Foráneos

$9,000.00