Tres Terrenos en venta Ideal para constructores que buscan plusvalía y rotación, solo quedan 3!!!

Contratada el 08/04/2026

$1,100,000

Información Básica

Ciudad:
Foráneos
Colonia:
Nuevo Refugio El Marques
m² Terreno:
144

Descripción

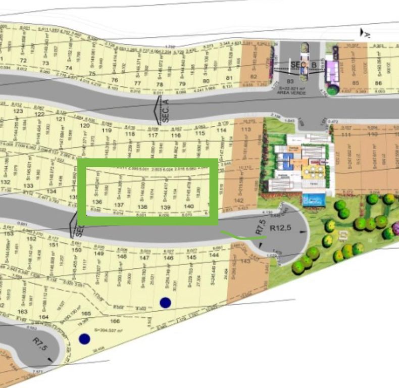
Tres Terrenos en venta de dos de 144 M2 y un tercero de 145 M2 en Nuevo Refugio 2, Querétaro
Excelente opción para desarrolladores e inversionistas que buscan tierra bien ubicada para vivienda.
La zona presenta alta proyección de crecimiento y absorción constante.
?? Vocación residencial
?? Buen acceso a vialidades principales
?? Proyecto con potencial de rentabilidad
Amenidades:
Casa club de dos niveles
Salón de usos múltiples
Asador exterior
Alberca de 11.80 x 5.40 m con 1.25 m de profundidad
Chapoteadero
Área de terraza
Gimnasio
Fogatero
Más de 3,125 m² de áreas verdes

Ubicación

Foráneos, Nuevo Refugio El Marques

Compartir

Anuncios similares

IXTLAHUACAN de los Membrillos

Foráneos,IXTLAHUACAN de los Membrillos

$0.00

AJIJIC hermosa, 2 cuadras lago

Foráneos,AJIJIC

$0.00

PUERTO Vallarta frente condominio, Punta…

Foráneos,PUERTO Vallarta

$0.00

RENTO DEPARTAMENTO AMUEBLADO EN POLANCO…

3 recámaras | 2 baños | 2 estacionamientos

Foráneos

$42,000.00